За имота
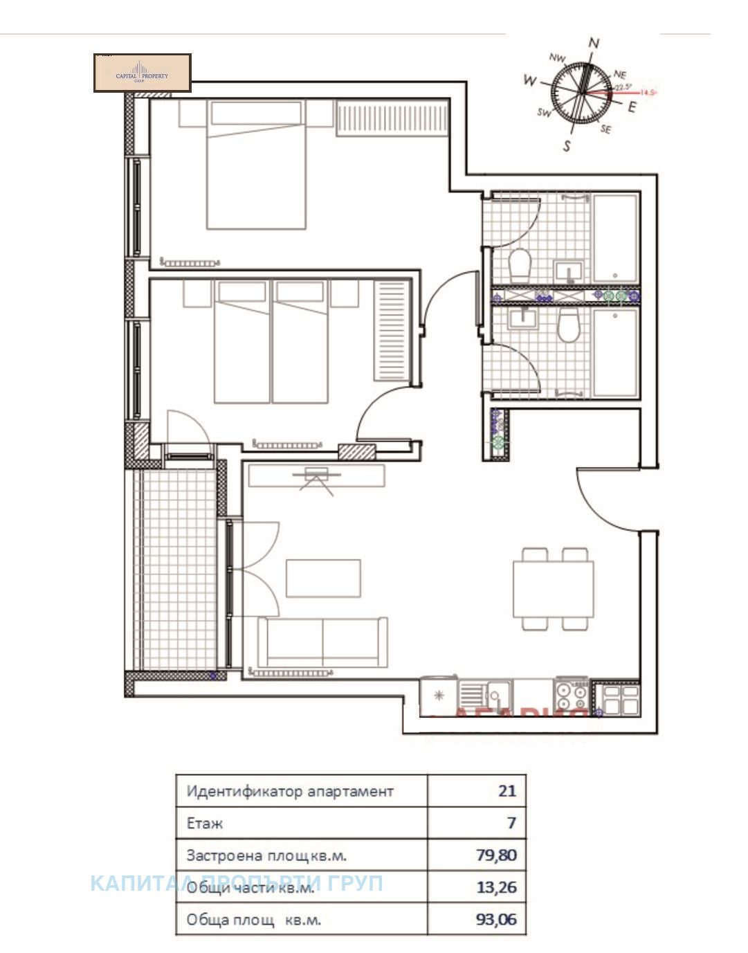
'Капитал Пропърти Груп' предлага за продажба тристаен апартамент в новострояща се сграда в Младост-3, разположен в непосредствена близост до парк, община Младост и 25то ДКЦ.Апартаментът е със застроена площ от 79,80 кв.м. прилежащи общи части 13,26 кв.мСъстои се от:- дневна/кухня- спалня- спалня 2- тераса- две санитарни помещения- килерСветла височина на помещенията 2,60м.Отопление ТЕЦ, възможност за климатици или термопомпа - изградени тръбни инсталации и разводки.Блиндирана входна врата.Алуминева дограма, цвят антрацит, троен стъклопакет, с газ аргон,нискоемисонни стъкла, паро и водо ленти, профил ETEM E65. Oтваряемост ипо двете оси съгласно проект.Има възможност за закупуване на гараж.В същата сграда предлагаме още 2-стайни, 3-стайни и 4-стайни апартаменти.От доказан инвеститор!Сградата е с акт 14.Атрактивна схема на плащане:20% при подписване на предварителният договор10% при акт 1570% при акт 16За повече информация и огледи: Соня Боджакова
- 3-стаен
- Тип имот
- 93
- m²
- 2025
- Година на строеж
- 7
- Етаж
- 8
- Етажи
- Тухла
- Вид строителство
- ТЕЦ
- Отопление
- 333
- ID на имота
Запази имота сега
Contact me








