За имота
Код 3319
НОВА СГРАДА КРАНЕВО!
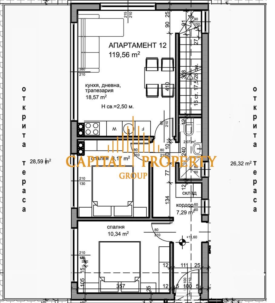
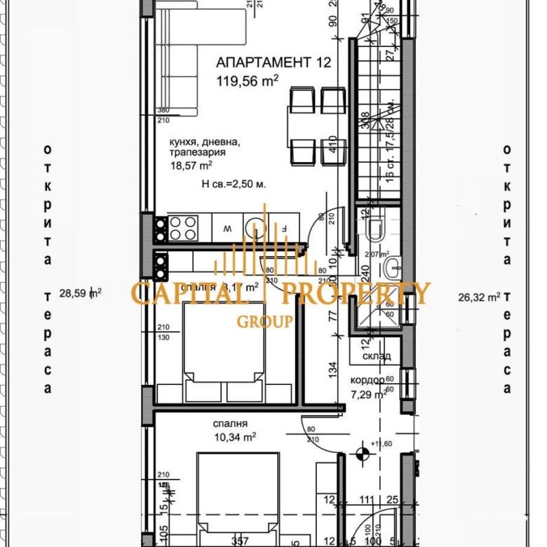
Capital Property Group Varna предлага тристаен апартамент състоящ се от входно антре, дневна с обща тераса на едната спалня, две спални, комбиниран санитарен възел.
СЛЕД АКТ 14!!!
Capital Property Group продава апартаменти в новострояща се жилищна сграда в с. Кранево, общ. Балчик.
В парцел с площ от 650 кв.м. ще бъде построена 6-етажна тухлена сграда с РЗП около 900 кв.м. В близост са автобусна спирка, детска градина, православен храм, магазин, само на 800 метра от Терма Палас и на 1300 метра от плажа.
Проектът включва 6-етажна сграда с 13 жилища. В момента е на етап СЛЕД АКТ 14, а предвидения срок за въвеждане в експлоатация на обекта е в края на лятото на 2026г. Сградата ще бъде завършена с луксозни общи части, асансьор и контролиран достъп. Ще бъде положена 10 см външна изолация, висок клас ПВЦ дограма и стъклопакети. Отоплението е предвидено да бъде с електричество, за целта ще бъдат положени тръби и окабеляване за климатици предварително. Жилищата ще се издават при степен на завършеност - до ключ, а именно: положени подови настилки от ламиниран паркет в стаите, баня и тоалет - с положен гранитогрес /ВиК на тапа/, стени и тавани - шпакловани и боядисани и монтирани интериорни врати.
Апартаментите ще бъдат със застроена площ от 28 кв.м. до 150 кв.м. Откритите паркоместа са 14 на брой, /от които 2 са инвалидни/ и ще бъдат ситуирани в двора около сградата.
В приложения снимков материал можете да намерите разпределенията на едностайни, двустайни и тристайни жилища.
ИНДИВИДУАЛНИ СХЕМИ НА РАЗСРОЧЕНО ПЛАЩАНЕ!!! Минимална първоначална вноска при подписване на предварителен договор - 50%.
Цени:
едностайни започващи от 42 900 евро;
двустайни започващи от 97 400 евро;
тристайни започващи от 106 900 евро;
открити ПМ - 12 500 евро.
Капитал Пропърти Груп разполага с юридически отдел, който извършва всички необходими юридически и технически проверки на имота, ще организира всички етапи на сделката до нейното финализиране с нотариално прехвърляне на имота.
Капитал Пропърти Груп може да Ви съдейства за отпускане на банков кредит при възможно най-добри условия за клиента, като избора на банка се определя спрямо нуждите и възможностите на клиента, при това напълно безплатно.
За повече информация и огледи се свържете с нас на посочения телефон или ни пишете на viber/whatsapp.
- 3-стаен
- Тип имот
- 100
- m²
- 2026
- Година на строеж
- 3
- Стаи
- 2
- Спални
- 4
- Етаж
- 6
- Етажи
- Необзаведен
- Обзавеждане
- Тухла
- Вид строителство
- Електричество
- Отопление
- 1
- Балкони (бр.)
- 1
- Баня с тоалетна (бр.)
- 3319
- ID на имота
Запази имота сега
Contact me







