За имота
Просторен и светъл тристаен апартамент – кв. “Манастирски ливади - изток “
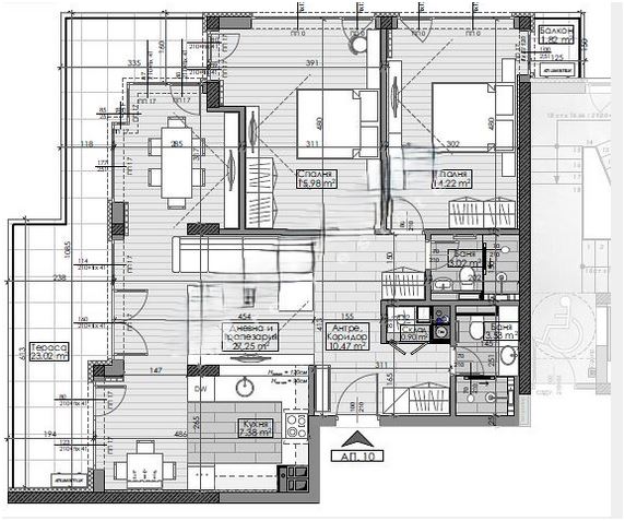
Квадратура - 136 кв.м
Етап на строителство - акт 16
Параметри:
· Площ: 136 кв.м , чиста жилищна площ - 118 кв м
· Етаж: 5 от 10
· Изложение: юг/запад и френски прозорци, което гарантира много светлина през целия ден
Разпределение:
· просторна дневна с трапезария - 28 кв м и кухня - 7 кв м
· две самостоятелни спални - 16 и 14 кв м ,
· две бани с тоалетна,
· входно антре,
· килер/склад,
· мокро помещение
· тераса - 23 кв м
· Отопление: газ, окабеляване за климатици
· Дограма: висок клас, отлична шумо- и топлоизолация
Локация - на границата на кв “ Гоце Делчев “ и “ Ман. Ливади “, с отлично развитата инфраструктура. Бързите връзки по бул. „Гоце Делчев“, „България“ и „Тодор Каблешков“ осигуряват лесно придвижване до центъра и основните бизнес зони, Bulgaria Mall и Paradise Center,както и до “ Южен парк “.
· В близост: училища, детски градини, поликлиники, спортни центрове и супермаркети (Billa, Lidl, T-Market, Дар)
Градски транспорт: автобуси 204, 76, Е73, Е74 (връзка към метро ст. „Bulgaria“), тролейбуси 7, 8, 801, трамвай 7 (връзка към метро ст. „Bulgaria“).
Цена: 391 800 €
· Паркиране: гаражи - 35 - 48 000 евро
СГРАДАТА
висок клас ново строителство
Конструкция и материали
Проектът е изпълнен с монолитна стоманобетонна конструкция, оразмерена на земетръс, и външни/вътрешни стени от червени керамични тухли от водещ европейски производител. Извършени са топло-, хидро- и шумоизолации, както и вътрешни мазилки от естествен гипс за по-здравословна среда. Инсталациите са със сертифицирани материали от реномирани производители. Архитектурата е елегантна, в стил класическа градска фасада, с френски прозорци, PVC дограма с немски петкамерен профил и високоенергийни нискоемисионни стъкла.
Общите части са представителни – миещи се мазилки в топли цветове и настилки от естествен гранит, осигурени са красиви и сигурни входни врати, голям и безшумен асансьор.
Жилищата се предават по БДС с блиндирани входни врати, циментова замазка на под, гипсова мазилка по стени и тавани, гранитогрес на тераси и балкони, парапети по одобрен проект, PVC дограмас троен стъклопакет, ниско емисионно Ка стъкло със слънцезащитно покритие - 4 сезона
, изградено окабеляване (слаботокови), домофон и звънчева инсталация с монтиран домофон, напълно изградени ВиК и електроинсталации, външна топлоизолация. Отопление: газ.
Сградата ще бъде управлявана по реда на Закона за етажната собственост - няма допълни такси за управление и поддръжка
- 3-стаен
- Тип имот
- 136
- m²
- 2025
- Година на строеж
- 3
- Стаи
- 2
- Спални
- 5
- Етаж
- 10
- Етажи
- Необзаведен
- Обзавеждане
- Тухла
- Вид строителство
- Газ
- Отопление
- 1
- Балкони (бр.)
- 2
- Баня с тоалетна (бр.)
- 7237
- ID на имота
Запази имота сега
Contact me




