За имота
КОД: 3320
АКТ 14!!!
Capital Property Group продава апартаменти в новострояща се жилищна сграда в м-ст Зеленика, гр. Варна.
В парцел с площ от 703 кв.м. ще бъде построена 4-етажна тухлена сграда с РЗП 540 кв.м. Намира се на 450 метра от автобусна спирка, на 800 метра от кв. Галата, на 2 км от плаж Аспарухово и хипермаркет ЛИДЛ.
Проектът включва 4-етажна сграда само с 4 жилища /по едно на етаж/. В момента проектът е на етап пред АКТ 14, а предвидения срок за въвеждане в експлоатация на обекта е в края 2026г. Сградата ще бъде със напълно завършени общи части, а жилищата със степен на завършеност по БДС. Ще бъде положена 10 см външна изолация - XPS, а върху нея минерална мазилка, 5-кмерна ПВЦ дограма и стъклопакети К-стъкло и 4 сезона. Изложението на всекидневните и на четирите жилища е западно.
Апартаментите ще бъдат със застроена площ от 97 кв.м. до 165 кв.м. Към всеки имот ще има и избено помещение, а на първия етаж ще има и 6 бр. велосипедни места. Откритите паркоместа са 5 на брой, /от които 1 е инвалидно/ и ще бъдат ситуирани непосредствено до улицата.
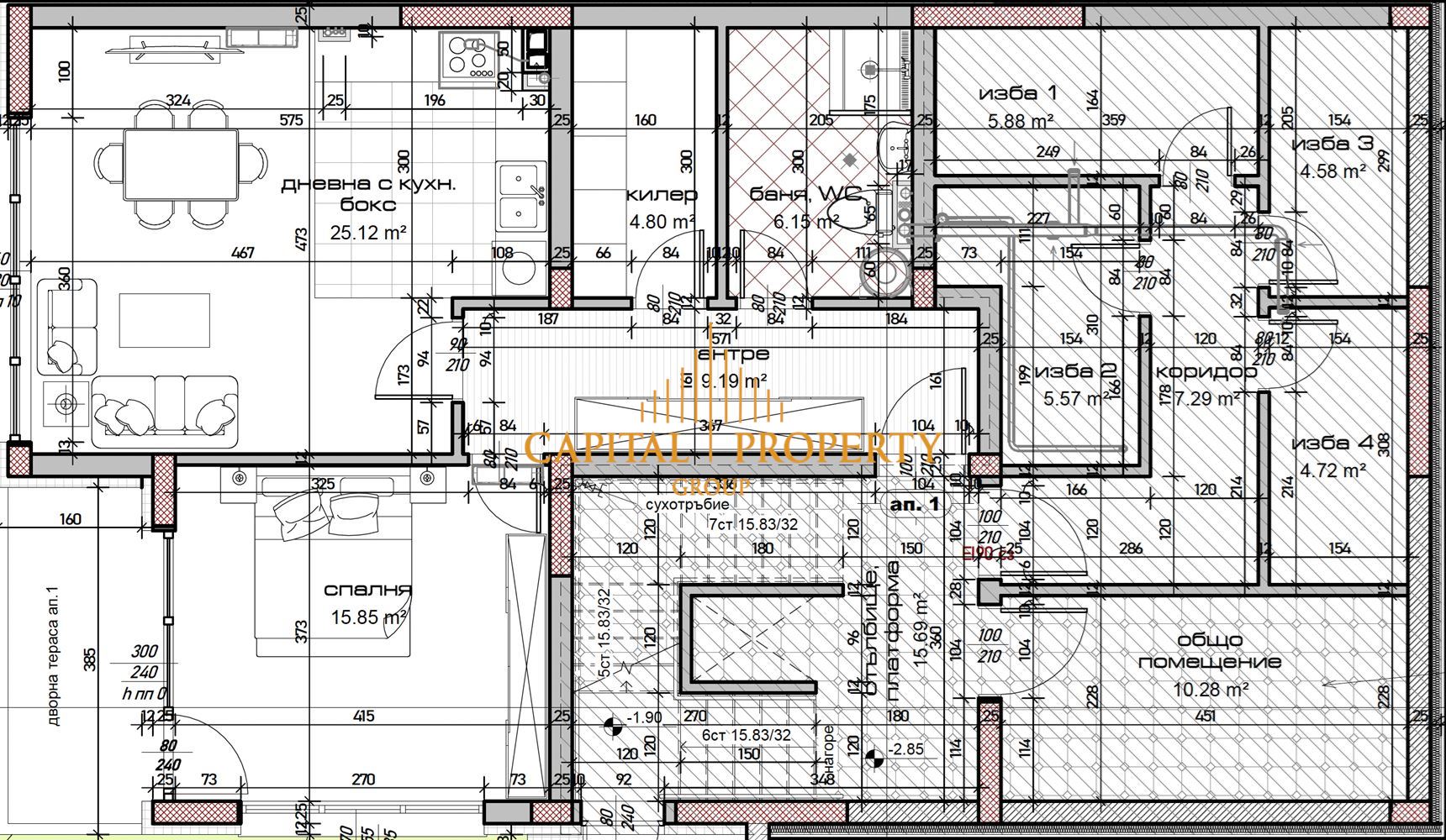
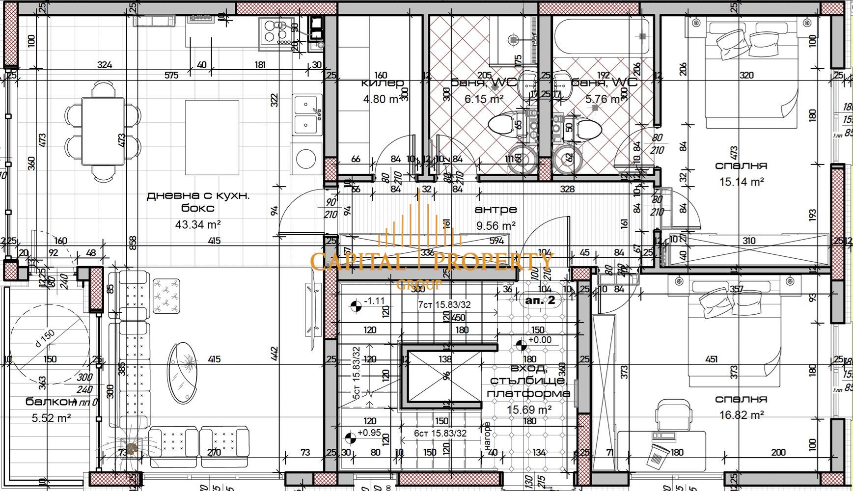
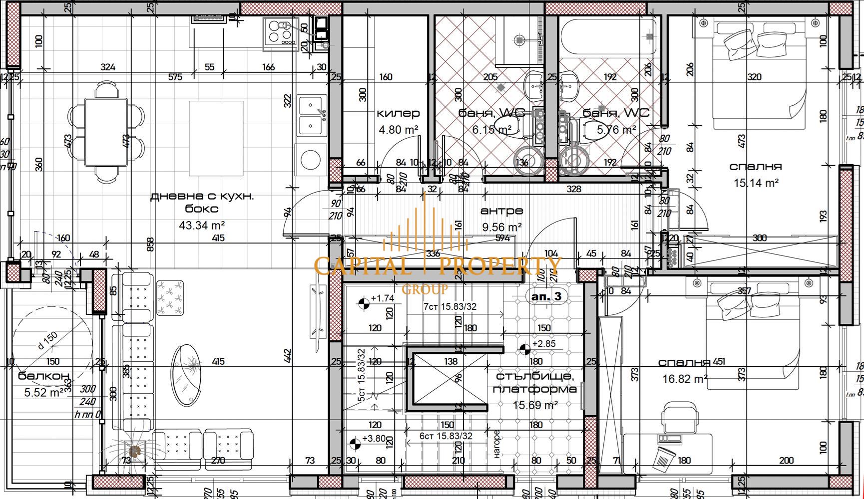
В приложения снимков материал можете да намерите разпределенията на апартаментите и разположението на паркоместата.
ИНДИВИДУАЛНИ СХЕМИ НА РАЗСРОЧЕНО ПЛАЩАНЕ!!! Минимална първоначална вноска при подписване на предварителен договор - 60%.
Цени: партерен етаж /-2,85м/ - двустаен апартамент с дворна тераса - 96.93 м2 - 145 400 евро;
втори етаж /0,00м/ - тристаен апартамент с всекидневна 43м2, две спални 15 и 17 м2, две бани с тоалет по 6м2, балкон 6м2, килер 5м2 и коридор 10м2 - обща площ 164.14 м2 - 262 700 евро;
трети етаж /2,85м/ - тристаен апартамент с всекидневна 43м2, две спални 15 и 17 м2, две бани с тоалет по 6м2, килер 5м2 - обща площ 163.08 м2 - 260 990 евро;
четвърти етаж /5,70м/ - двустаен апартамент с всекидневна от 35.5м2, спалня 16м2, баня с тоалет 6м2, килер 5м2 - обща площ 150 м2 /от които около 35м2 са покривни тераси/ - 198 990 евро.
открити ПМ - 13 000 евро.
Поради спецификата на терена в района на сградата, от всекидневните на апартаментите се открива ПАНОРАМНА ГЛЕДКА КЪМ ВАРНА ОТ ВСЕКИ ЕТАЖ!!!
Капитал Пропърти Груп разполага с юридически отдел, който извършва всички необходими юридически и технически проверки на имота, ще организира всички етапи на сделката до нейното финализиране с нотариално прехвърляне на имота.
Капитал Пропърти Груп може да Ви съдейства за отпускане на банков кредит при възможно най-добри условия за клиента, като избора на банка се определя спрямо нуждите и възможностите на клиента, при това напълно безплатно.
За повече информация и огледи се свържете с нас на посочения телефон или ни пишете на viber/whatsapp.
- Сгради
- Тип имот
- 97
- m²
- 2026
- Година на строеж
- 4
- Стаи
- 4
- Етажи
- Необзаведен
- Обзавеждане
- Електричество
- Отопление
- 3320
- ID на имота
| № | Цена (€) | Цена (лв.) | Квадратура | Тип | Статус | Вход | Етаж | Изложение |
|---|---|---|---|---|---|---|---|---|
| 2 | €262,700 | 513,797 лв. | 164.14 кв.м. | 3-стаен | Свободен | - | 2 | Източно, Южно, Западно |
| 1 | €145,400 | 284,378 лв. | 96.93 кв.м. | 2-стаен | Свободен | - | 1 | Южно, Западно |
| 3 | €260,990 | 510,452 лв. | 163.08 кв.м. | 3-стаен | Свободен | - | 3 | Източно, Южно, Западно |
| 4 | €198,990 | 389,191 лв. | 150.22 кв.м. | 2-стаен | Свободен | - | 4 | Източно, Южно, Западно |
| 1 | €13,000 | 25,426 лв. | 12.5 кв.м. | Гараж | Свободен | - | 1 | - |
Обект 2
СвободенОбект 1
СвободенОбект 3
СвободенОбект 4
СвободенОбект 1
СвободенЗапази имота сега
Contact me







