За имота
КОД: 3323
АКТ 14!!!
Capital Property Group продава двустаен апартамент със обща застроена площ от 97 м2 в новострояща се жилищна сграда в м-ст Зеленика, гр. Варна.
В парцел с площ от 703 кв.м. ще бъде построена 4-етажна тухлена сграда с РЗП 540 кв.м. Намира се на 450 метра от автобусна спирка, на 800 метра от кв. Галата, на 2 км от плаж Аспарухово и хипермаркет ЛИДЛ.
Проектът включва 4-етажна сграда само с 4 жилища /по едно на етаж/. В момента проектът е на етап пред АКТ 14, а предвидения срок за въвеждане в експлоатация на обекта е в края 2026г. Сградата ще бъде със напълно завършени общи части, а жилищата със степен на завършеност по БДС. Ще бъде положена 10 см външна изолация - XPS, а върху нея минерална мазилка, 5-кмерна ПВЦ дограма и стъклопакети К-стъкло и 4 сезона. Изложението на всекидневните и на четирите жилища е западно. Поради спецификата на терена в района на сградата, от всекидневните на апартаментите се открива ПАНОРАМНА ГЛЕДКА КЪМ ВАРНА ОТ ВСЕКИ ЕТАЖ!!!
Апартаментите ще бъдат със застроена площ от 97 кв.м. до 165 кв.м. Към всеки имот ще има и избено помещение, а на първия етаж ще има и 6 бр. велосипедни места. Откритите паркоместа са 5 на брой, /от които 1 е инвалидно/ и ще бъдат ситуирани непосредствено до улицата.
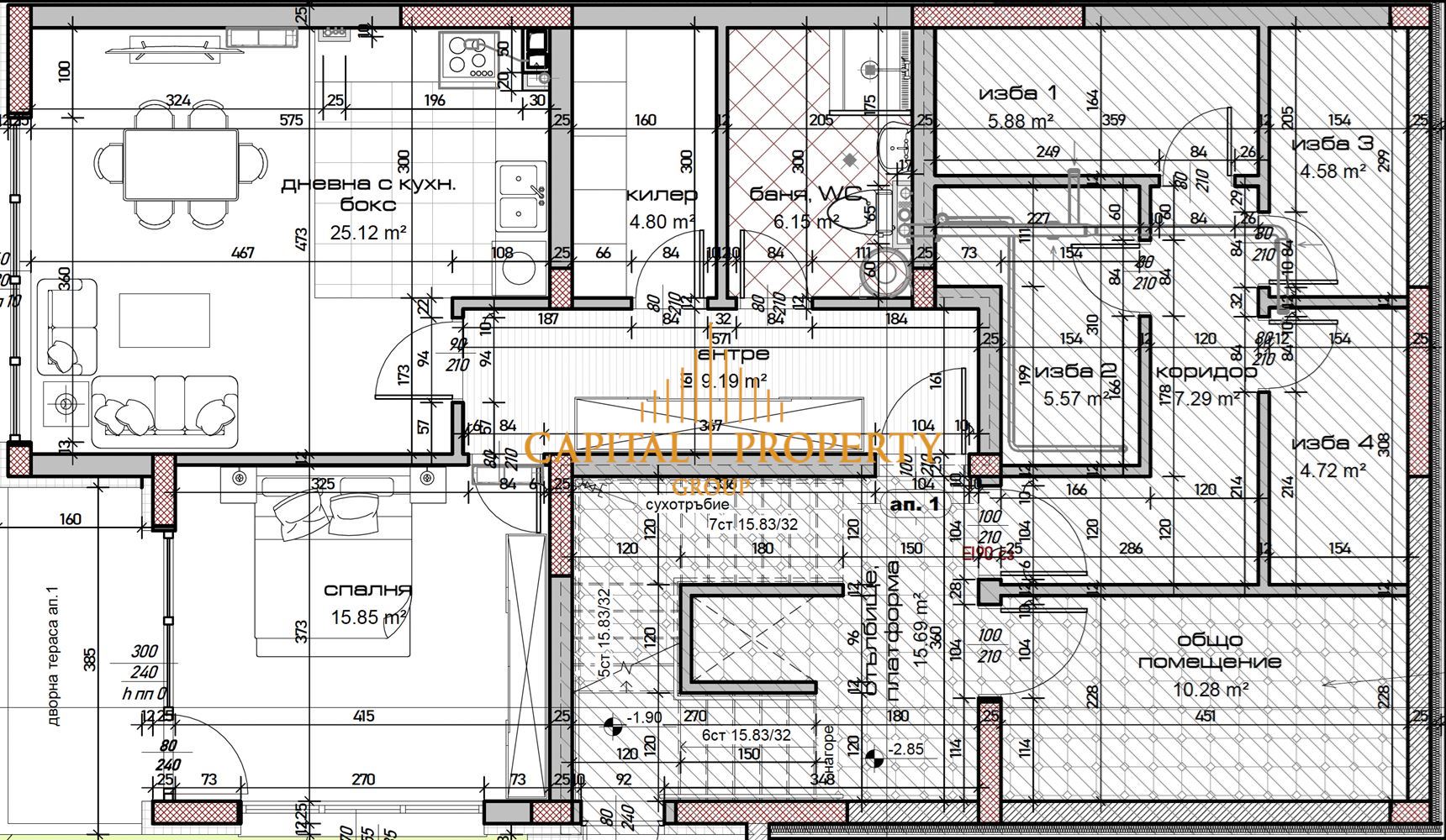
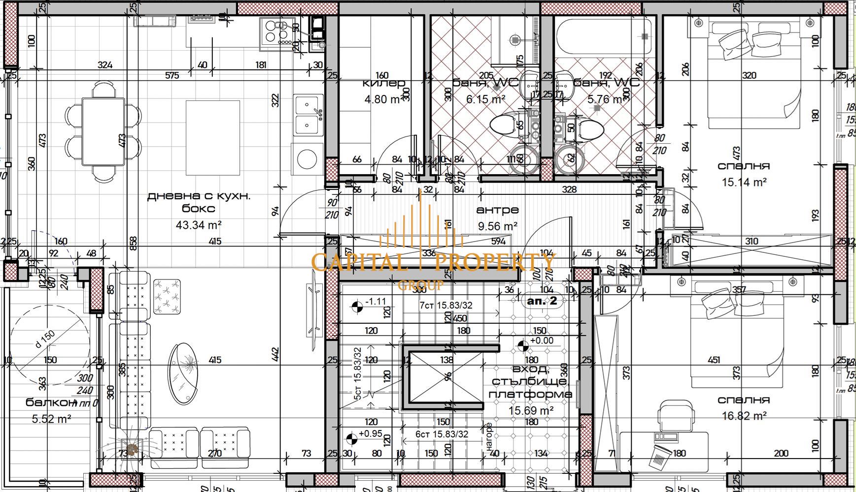
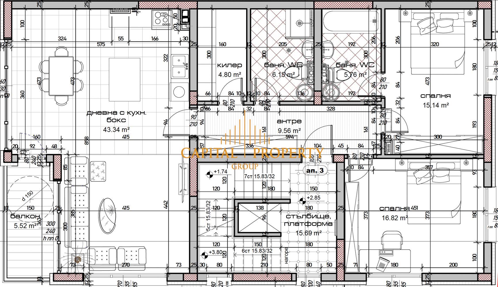
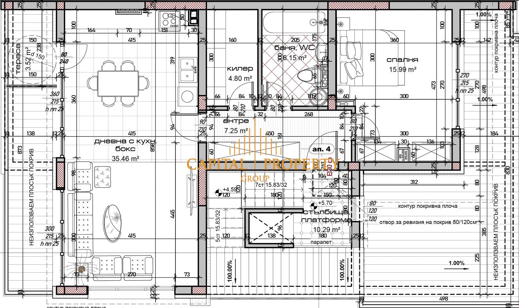
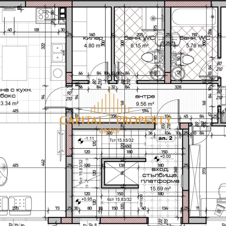
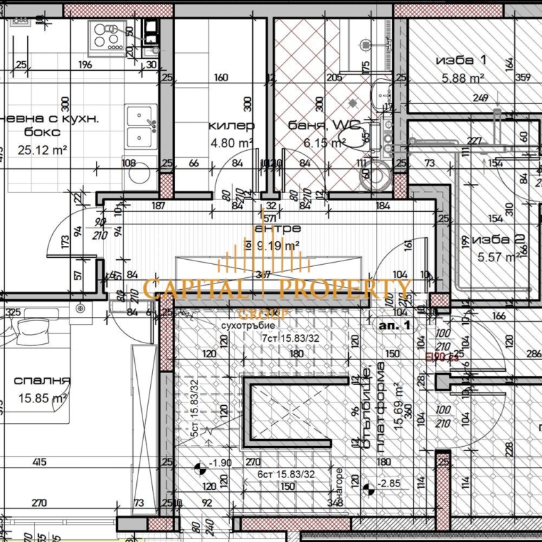
В приложения снимков материал можете да намерите разпределенията на апартаментите и разположението на паркоместата.
ИНДИВИДУАЛНИ СХЕМИ НА РАЗСРОЧЕНО ПЛАЩАНЕ!!! Минимална първоначална вноска при подписване на предварителен договор - 60%.
Цени: партерен етаж /-2,85м/ - двустаен апартамент с дворна тераса - 96.93 м2 - 145 400 евро;
втори етаж /0,00м/ - тристаен апартамент с всекидневна 43м2, две спални 15 и 17 м2, две бани с тоалет по 6м2, балкон 6м2, килер 5м2 и коридор 10м2 - обща площ 164.14 м2 - 262 700 евро;
трети етаж /2,85м/ - тристаен апартамент с всекидневна 43м2, две спални 15 и 17 м2, две бани с тоалет по 6м2, килер 5м2 - обща площ 163.08 м2 - 260 990 евро;
четвърти етаж /5,70м/ - двустаен апартамент с всекидневна от 35.5м2, спалня 16м2, баня с тоалет 6м2, килер 5м2 - обща площ 150 м2 /от които около 35м2 са покривни тераси/ - 198 990 евро.
открити ПМ - 13 000 евро.
Капитал Пропърти Груп разполага с юридически отдел, който извършва всички необходими юридически и технически проверки на имота, ще организира всички етапи на сделката до нейното финализиране с нотариално прехвърляне на имота.
Капитал Пропърти Груп може да Ви съдейства за отпускане на банков кредит при възможно най-добри условия за клиента, като избора на банка се определя спрямо нуждите и възможностите на клиента, при това напълно безплатно.
За повече информация и огледи се свържете с нас на посочения телефон или ни пишете на viber/whatsapp.
- 2-стаен
- Тип имот
- 97
- m²
- 2026
- Година на строеж
- 2
- Стаи
- 1
- Спалня
- 1
- Етаж
- 4
- Етажи
- Необзаведен
- Обзавеждане
- Тухла
- Вид строителство
- Електричество
- Отопление
- 1
- Балкони (бр.)
- 1
- Баня с тоалетна (бр.)
- 3323
- ID на имота
Запази имота сега
Contact me







