За имота
🏡 Четиристаен апартамент за продажба – ново строителство
📍 Локация: София, кв. Кръстова Вада
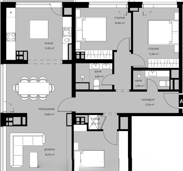
📐 Обща площ: 168 кв.м.
• 🛋️ Разпределение:
просторна дневна с кухненски бокс
три самостоятелни спални, две бани с тоалетни,
перално/складово помещение,
две тераси
📦 Допълнително: склад/мазе към апартамента
• 🌅 Простор и светлина: комфортни помещения с големи прозорци и гледки към Витоша
• 🧱 Състояние: по БДС, с възможност за завършване “до ключ” по индивидуален проект
• ❄️/🔥Отопление: климатици предвидена инсталация; възможност за подово отопление
• 🧭 Функционалност: правилна форма на стаите, оптимално усвоени площи, място за вградени гардероби
• 🛡️ Сграда: модерна фасада с топлоизолация, контролиран достъп, асансьор, добре поддържани общи части
•Фасадата е с декоративни метални профили и тухлена облицовка, изпълнена като вентилируема окачена фасада на немската фирма ABC Klinker. 12 см каменна вата и пародифузна мембрана ще се осигурят максималните топлотехнически показатели. Фасадните прозорци ще бъдат произведени от PVC профили на немска компания. Шест-камерната профилна система в комбинация със стъклопакета с нискоемисийно стъкло и аргон, действат като отличен топлоизолатор, който гарантирано ще предпазва и от градски шум.
Ажурните парапети по фасадата са решени с триплексно стъкло, а някой от тях с метални вертикални профили, чрез което се постига усещане за лекота и простор.
Сградата се намира на отлична локация, на 10 минути от метростанция, в близост до Парадайз и Фантастико.
• 🚗 Паркиране: опция за закупуване на подземно паркомясто или гараж
• 🧭 Предимства: бърз достъп до бул. Черни връх и Околовръстен път, Paradise Center, спорт и услуги на минути разстояние
• 🚇 Транспорт: удобни връзки до метростанция Витоша и ключови автобусни линии
💶 Цена: 420 000 €
Идеален дом за семейство, което търси простор, светлина и спокойствие, без да прави компромис с градската инфраструктура. За оглед и повече информация: свържете се с нас още днес! 📞
🗺️ Кръстова Вада е един от най-бързо развиващите се и предпочитани райони на София – съчетава ново строителство, ниска плътност на застрояване и непосредствена близост до природата на Витоша.
🛍️ Наблизо ще откриете молове, супермаркети, фитнеси, училища и детски градини, както и бърз транспорт до центъра и бизнес зоните.
- 4-стаен
- Тип имот
- 168
- m²
- 2026
- Година на строеж
- 4
- Стаи
- 3
- Спални
- 2
- Етаж
- 6
- Етажи
- Необзаведен
- Обзавеждане
- Тухла
- Вид строителство
- Газ
- Отопление
- 2
- Балкони (бр.)
- 2
- Баня с тоалетна (бр.)
- 7179
- ID на имота
Запази имота сега
Contact me
